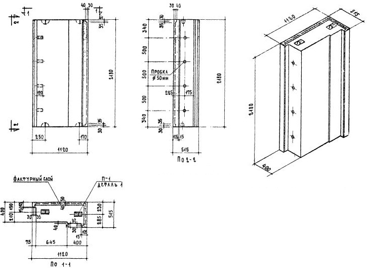
НБУ-10.22.4-1
Характеристики изделия:
| Параметр | Значение |
|---|---|
| Длина | 1120 мм |
| Ширина | 400 мм |
| Высота | 2180 мм |
| Масса | 1920 кг |
| Нормативный документ | Серия 1.133-1 |
Цена:
Рассчитать стоимостьСтеновые легкобетонные блоки толщиной 40 см по Серии 1.133-1.
НБУ-10.22.4-1 Простеночный блок угловой.