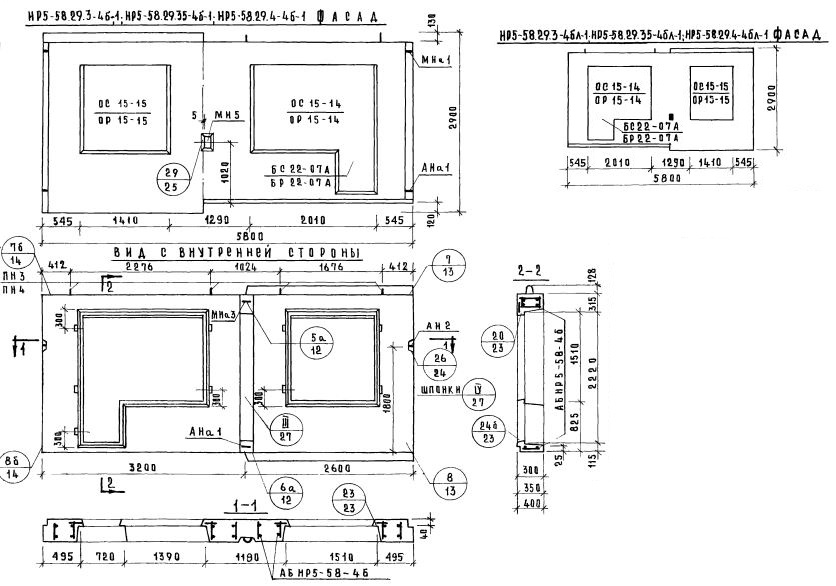
НР5-58.29.35-4бл-1
Характеристики изделия:
Параметр | Значение |
---|---|
Длина | 5800 мм |
Ширина | 350 мм |
Высота | 2900 мм |
Масса | 5240 кг |
Нормативный документ | Серия 1.132-1 |
Цена:
Рассчитать стоимостьНР5-58.29.35-4бл-1 Наружная стеновая панель рядовая по Серии 1.132-1.