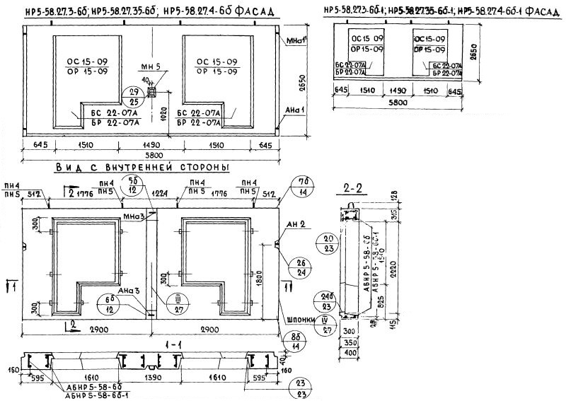
НР5-58.27.3-6б
Характеристики изделия:
Параметр | Значение |
---|---|
Длина | 5800 мм |
Ширина | 300 мм |
Высота | 2650 мм |
Масса | 4370 кг |
Нормативный документ | Серия 1.132-1 |
Цена:
Рассчитать стоимостьНР5-58.27.3-6б Наружная стеновая панель рядовая по Серии 1.132-1.
Параметр | Значение |
---|---|
Длина | 5800 мм |
Ширина | 300 мм |
Высота | 2650 мм |
Масса | 4370 кг |
Нормативный документ | Серия 1.132-1 |
НР5-58.27.3-6б Наружная стеновая панель рядовая по Серии 1.132-1.