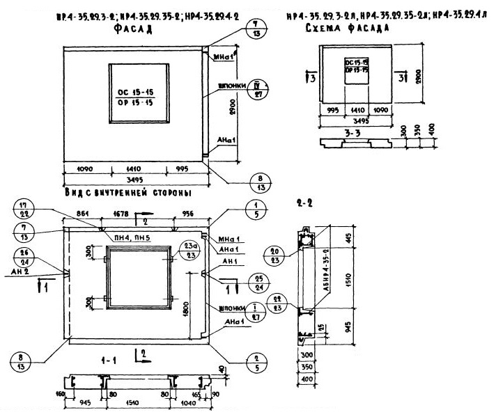
НР4-35.29.35-2л
Характеристики изделия:
Параметр | Значение |
---|---|
Длина | 3495 мм |
Ширина | 350 мм |
Высота | 2900 мм |
Масса | 3790 кг |
Нормативный документ | Серия 1.132-1 |
Цена:
Рассчитать стоимостьНР4-35.29.35-2л Наружная стеновая панель рядовая по Серии 1.132-1.
Параметр | Значение |
---|---|
Длина | 3495 мм |
Ширина | 350 мм |
Высота | 2900 мм |
Масса | 3790 кг |
Нормативный документ | Серия 1.132-1 |
НР4-35.29.35-2л Наружная стеновая панель рядовая по Серии 1.132-1.