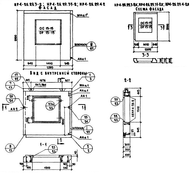
НР4-26.29.3-2
Характеристики изделия:
Параметр | Значение |
---|---|
Длина | 2595 мм |
Ширина | 300 мм |
Высота | 2900 мм |
Масса | 2200 кг |
Нормативный документ | Серия 1.132-1 |
Цена:
Рассчитать стоимостьНР4-26.29.3-2 Наружная стеновая панель рядовая по Серии 1.132-1.
Параметр | Значение |
---|---|
Длина | 2595 мм |
Ширина | 300 мм |
Высота | 2900 мм |
Масса | 2200 кг |
Нормативный документ | Серия 1.132-1 |
НР4-26.29.3-2 Наружная стеновая панель рядовая по Серии 1.132-1.